K-WANG



The BTicino brand Megatiker M3 160 thermal magnetic circuit breaker and MS3 160 isolating switch have a core rated current of 160A, support 3P/4P poles, and vertical/horizontal panel installation. The circuit breaker has a breaking capacity covering 36kA (F), 50kA (N), 70kA (H), and 100kA (L) levels, and the isolating switch has a short-circuit withstand current of 1.5kA. Both operate at temperatures of * * -25~70 ℃ * *, with a mechanical life of 20000 cycles and an electrical life of 8000 cycles; Equipped with a variety of accessories such as release devices, auxiliary contacts, and rotating handles, following the IEC/EN 60947 standard, suitable for overload, short circuit protection, and power isolation scenarios in medium to large industrial distribution systems.
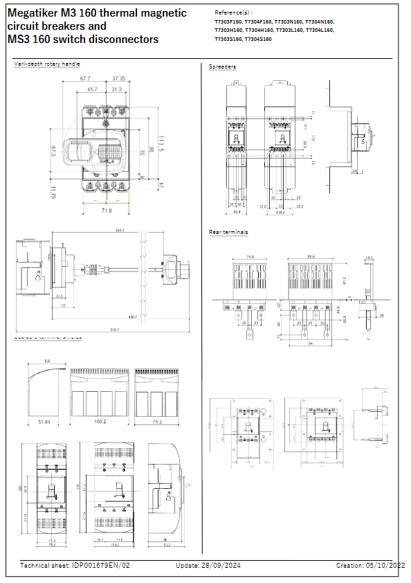
Core products and basic configurations
Product positioning and applicable scenarios
Both products are core equipment for medium to large distribution systems, with a rated current of 160A, suitable for 3P (three-phase) and 4P (three-phase four wire) distribution architectures;
M3 160 circuit breaker: used for overload and short circuit protection, supporting "forward/reverse" power supply;
MS3 160 isolation switch: used for power isolation, ensuring maintenance safety, and compatible with circuit breaker cooperation.
Core physical parameters
|Product type | Number of poles | Size (W × H × D, mm) | Weight (kg) | Standard accessories|
|M3 160 circuit breaker | 3P | 75 × 135 × 86 | 0.95 | 2 fixing screws, 6 connecting screws, 2 phase insulators|
|M3 160 Circuit Breaker | 4P | 100 × 135 × 86 | 1.2 | 4 fixing screws, 8 connecting screws, and 3 phase insulators|
|MS3 160 Isolation Switch | 3P | 75 × 135 × 86 | 0.95 | Consistent with Circuit Breaker | MS3 160 Isolation Switch | 4P | 100 × 135 × 86 | 1.2 | Consistent with Circuit Breaker|
Key technical parameters (electrical and mechanical)
(1) M3 160 Thermal Magnetic Circuit Breaker
Electrical parameters
Insulation and Voltage: Rated insulation voltage Ui=800V, rated operating voltage Ue=690V (AC 50/60Hz), impulse withstand voltage Uimp=8kV;
Breaking capacity (Icu): Divided into four levels by model, as shown in the table below:
Model suffix breaking capacity (Icu) 415V AC Icm (kA) 240V AC Icu (kA) 690V AC Icu (kA)
F 36kA 76.5 70 5
N 50kA 105 90 6
H 70kA 154 100 10
L 100kA 220 150 12
Protection features: Thermal trip Ir=0.8-0.9-1 × In (adjustable), magnetic trip Ii=1600A (non adjustable), 4P version neutral pole protection with 100% phase pole capacity;
Power consumption: The unipolar power loss varies with the connection method, as shown in the table below:
Connection method Icu ≤ 50kA (W) Icu>50kA (W)
Terminal block 15.62 16.64
Expander 18.18 18.18
Rear terminal 24.58 24.58
mechanical parameters
Operating force: opening 40N, closing 40N, resetting 53N;
Lifespan: 20000 mechanical operations and 8000 electrical operations at rated current;
Electric power protection: In case of short circuit, the distance between the conductor and the circuit breaker should be ≥ 200mm (100kA breaking capacity) and ≥ 350mm (36kA breaking capacity).
(2) MS3 160 isolation switch
Core parameters
Electrical: rated insulation voltage Ui=800V, rated working voltage Ue=690V, short-time withstand current Icw=1.5kA (1s), rated closing current Icm=2.5kA;
Power consumption: Single pole power loss (at 160A): wiring terminal 12.80W, expander 15.36W, rear terminal 21.76W;
Lifespan: Consistent with the circuit breaker (20000 mechanical cycles, 8000 electrical cycles), utility category AC23A.

Installation requirements and accessory compatibility
Installation specifications
Installation method: Vertical/horizontal installation of the panel, supporting forward (LINE/LOAD identification) or reverse power supply (no identification);
Cable adaptation: Both copper and aluminum cables are supported, with a maximum cross-sectional area of 1 × 70mm ² for flexible/rigid cables (aluminum cables with In ≤ 80A);
Cage terminal adaptation: Corresponding cable cross-sections according to current specifications, as shown in the following table (example):
Rated current (A) Minimum cross-section of copper cable (mm ²) Maximum cross-section of copper cable (mm ²) Minimum cross-section of aluminum cable (mm ²) Maximum cross-section of aluminum cable (mm ²)
160 25 70 35 95
Accessory system (fully compatible)
The accessory category represents the core functional key parameters of the product
Release M7S024 (excitation) remote disconnection 24Vac/dc, power 400VA/W, disconnection time<50ms
Release M7U024 (undervoltage) undervoltage protection 24Vac/dc, power 4VA, trip voltage 35-70% Vn
Auxiliary contact M7X01 status feedback 3A/250VAC, 1NO/NC, supports fault signal output
Rotating handle M7R20 (standard) manual operation black, compatible with 3P/4P products
Rotating handle M7R21 (emergency) emergency operation red/yellow, IP55 protection
M7I01 dual device interlocking mechanism compatible with 2 M3 160/250 fixed versions
Connection accessories M7X59 cage terminals 3 pieces/set, compatible with 1 × 70mm ² copper/aluminum cable
Protection cover M7C20 terminal protection 2 pieces/set, compatible with 3P products, sealed design
Capacity reduction characteristics and compliance
Capacity reduction requirements
Temperature reduction: At an ambient temperature of 70 ℃, In=138A (0.86 × 160A); -At 20 ℃, In=201A (1.26 × 160A);
Capacity reduction at altitude: Capacity reduction is required when the altitude is greater than 2000m, as shown in the table below:
Altitude (m) Rated working voltage Ue (V) Rated current In (A)
2000 690 160(1×In)
3000 590 157(0.98×In)
4000 520 149(0.93×In)
5000 460 144(0.9×In)
DC application: A 1-pole circuit breaker with a breaking capacity of 35-50kA at 60Vdc and 10kA at 250Vdc (to be used in series).
Compliance and Identification
Following standards: IEC/EN 60947-2 (circuit breaker), IEC/EN 60947-3 (isolating switch), certified by IECEE CB/LOVAG;
Identification requirements: The manufacturer, model, standard, and breaking capacity (color identification) should be laser marked on the front, and the barcode and country of production should be labeled on the side sticker.

KONG JIANG
Add: Jimei North Road, Jimei District, Xiamen, Fujian, China
Tell:+86-15305925923