K-WANG



Emerson MMS 3210 Dual Channel Axial Displacement Transmitter
Basic Overview
The MMS 3210/... dual channel shaft displacement transmitter is part of the improved MMS 3000 transmitter system, used for monitoring and protecting various types of turbomachinery. The new generation transmitter has highly flexible hardware options and diverse combination possibilities, which can be best adapted according to the needs of the corresponding factory. It can economically measure and monitor relative axis displacement and axis position through eddy current sensors.
Application Fields
Suitable for various types of turbomachinery, fans, compressors, gearboxes, pumps, and similar rotating machinery. Due to its bus capability, it is suitable for both large systems with programmable logic control and host computers used in power plants, refineries, and chemical plants, as well as small factories with only a few measurement points and decentralized data processing.
Function and Design
Can convert the input signal of the eddy current sensor into two independent signals proportional to the shaft displacement or relative expansion.
The integrated module and sensor monitoring can detect the fault function of sensors and module electronic devices. At this time, the normal output (channel clearing) status will change, and the 4-20 mA current output indicates 0 mA.
All necessary configurations are completed through MMS 3910W configuration software, and the transmitter is delivered with standard configurations suitable for most applications, or other configurations can be prepared at the factory.
Technical parameters
Sensor Input: Two independent inputs, suitable for series eddy current sensors such as PR 6422/... and PR 6423/..., with standard internal "Lemo" connectors and optional internal "Lemo" connectors with extended measurement range and external "Harting" connectors.
Measurement range: can be freely selected by configuring software according to the applied sensor.
Frequency range: The low-pass filter is 10Hz.
output characteristic
The standard consists of two current outputs proportional to the selected characteristics and related to system grounding, which can be freely allocated to the measurement channel; Choose between two galvanic separated current outputs proportional to the selected characteristics, or no current output.
The current output range is 0/4... 20 mA or 20... 4/0 mA, with a maximum load of 500 ohms and open circuit and short circuit protection.
Buffer sensor signal: Two signal outputs for analysis and diagnosis, one for each channel, proportional to the dynamic sensor signal, accessible through terminals, unfiltered voltage output of 2-10 V, with an error of ± 2.5%.
Limit and channel monitoring: A total of 5 functional outputs are provided, with limit values programmable for individual or combined measurements. Function outputs can be freely allocated through configuration software and have multiple output options.
Data interface: The standard is RS 232 interface, with optional RS485 bus (with epro protocol V2.0) and PROFIBUS DP.
Linear error: 0.25% at 25 ° C without sensors; When there are sensors, different models of sensors have different errors within the standard measurement range. The error for expanding the measurement range can be found in the data table.
Output temperature stability:<0.08%/10K.
Long term drift: up to 1% of full scale.
Power supply: Optional redundant power supply, decoupled through diodes, nominal+24 V DC, allowed voltage range+18...+31.2 V DC, power consumption depends on built-in options, maximum 6 W.
Shell: made of aluminum, corrosion-resistant, with a protection level of IP 65 (compliant with DIN 40050, IEC 144, CE certification), passed EMC testing according to EN 55011 and EN 61326.
Environmental conditions: The maximum allowable temperature of the installation surface and the working temperature range may vary depending on the installation method. The allowable relative humidity is 0... 95% (without condensation), and there are corresponding standards for vibration and impact.
Installation direction: It is best to have the cable gland facing downwards.
Weight: Depending on the selected hardware option, the maximum net weight is 1.3 kg and the maximum gross weight is 1.5 kg.

Module and sensor monitoring
Internal module monitoring continuously checks whether the input signal is within the predefined range, whether the cable between the transmitter and sensor is normal (no short circuit/disconnection), system voltage, etc. The status monitored by modules and sensors can be signaled through the switch contacts of functional outputs.
Main configuration parameters
Configure through MMS 3910W configuration software, which needs to be ordered separately. There are many adjustable parameters that vary depending on the selected operating mode and measurement function, including KKS identification, operating mode, sensor sensitivity, etc. for each channel.
Limit monitoring and functional output
There are five functional outputs, each of which can be assigned to limit values and channel clearing functions. The allocation between input channels and functional outputs can be freely selected. The output of channel clearing can be performed separately for each channel, or a combination of logical "OR" or "AND" can be used. The limit can be set for the sum of a single channel and a combination of two channels, and there are multiple alarm functions to choose from.
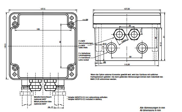
Size
Partial dimensional data is provided in millimeters. If the external converter option is selected, the housing comes with a Harting plug on the side, and dimensions can refer to the MMS 3120 data sheet. The M20/PG13.5 adapter is included with the delivery.
Operation mode
Provide different measurement modes, which can be configured through MMS 3910W configuration software. In the operating mode of a single or dual channel transmitter without combining channel results, the relative position corresponding to the sensor used can be measured; In the dual channel mode of combining channel results, multiple measurement modes can be achieved.
Input/Output
Includes standard RS 232 interface, redundant 2 x+24 V power supply voltage, optional binary output, current output, and corresponding pin allocation and LED allocation.
Ordering Options
The sensor inputs K1 and K2 are two identical input channels and cannot be used interchangeably. There are multiple options for communication methods, output characteristics, functional outputs, displays, converters, etc. Standard models and accessories available for immediate supply were also provided.

KONG JIANG
Add: Jimei North Road, Jimei District, Xiamen, Fujian, China
Tell:+86-15305925923